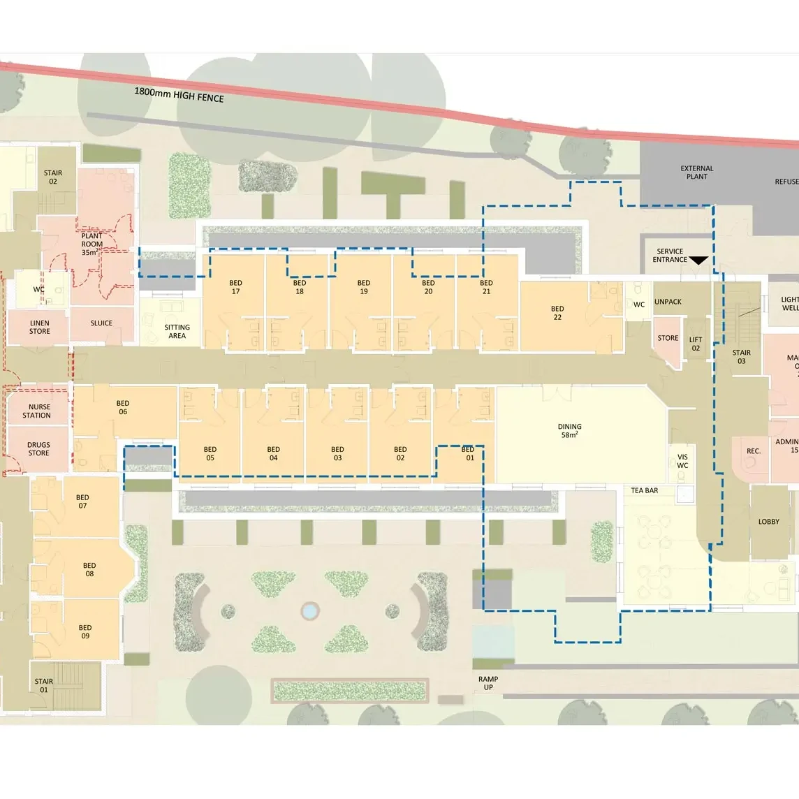
A demolition of an existing 42-bed sub-standard home and phased rebuild of a new 52-bed, purpose build care home. Built within grounds of established care facility, to ensure continuous operation of the existing home while building the new development.





