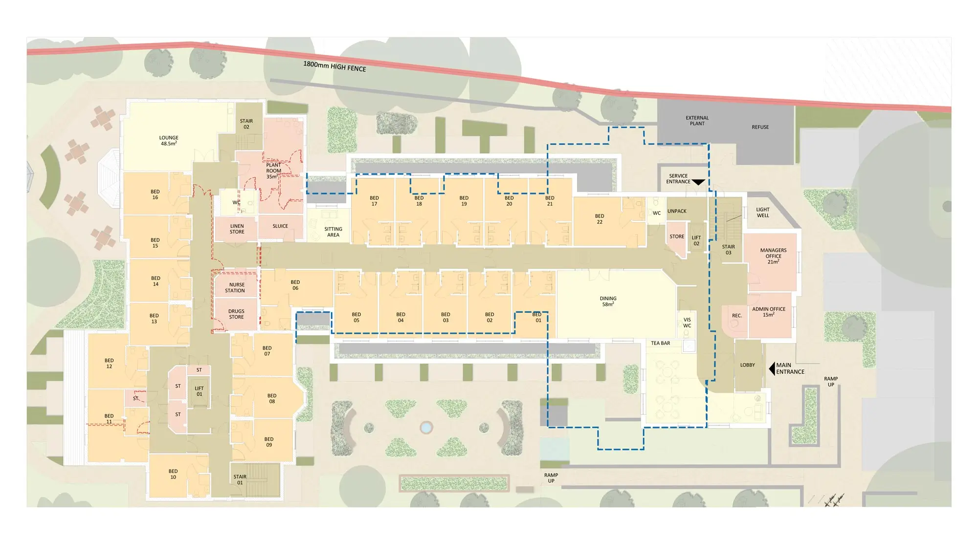
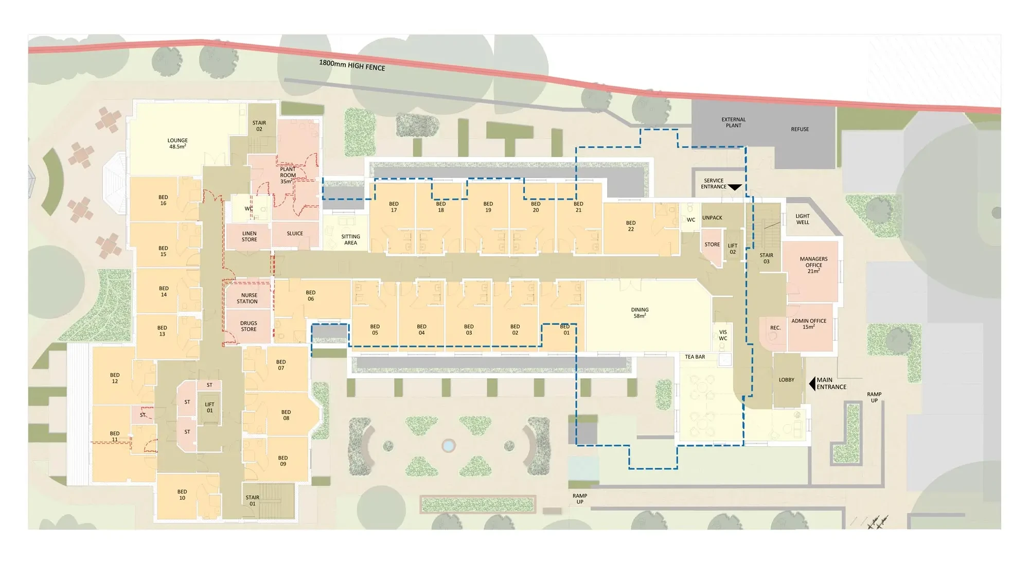
StavertonTrowbridge, Wiltshire See all projectsDemolition of the Old Vicarage to link to an existing care home providing 46 beds in an area with demand for care. Get in touch today to chat about your project.01628 665 131enquiries@carless-adams.co.uk More projectsSee all SouthlandsSittingbourne, Kent Steamer QuayTotnes, Devon