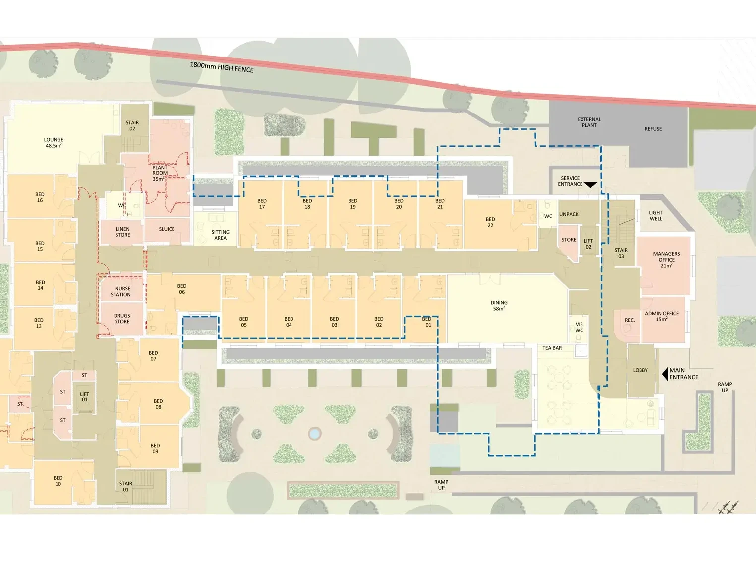
Care Homes
Carless + Adams design care homes to create inspiring communal settings where care and nursing, plus accommodation, is provided. All facilities are bespoke designed and built with residents and care givers needs in mind. We understand home environments have huge impact on individuals’ wellbeing and design for this.
"We were very happy with Carless + Adams Ltd throughout the project and appreciated all the work that they did in creating an environment everyone wants to live in and maximising the use of functional space while incorporating changes and ensuring buildability. Residents, families and staff are very complementary about the scheme which looks great and meets everyone’s requirements very well.”
Client






